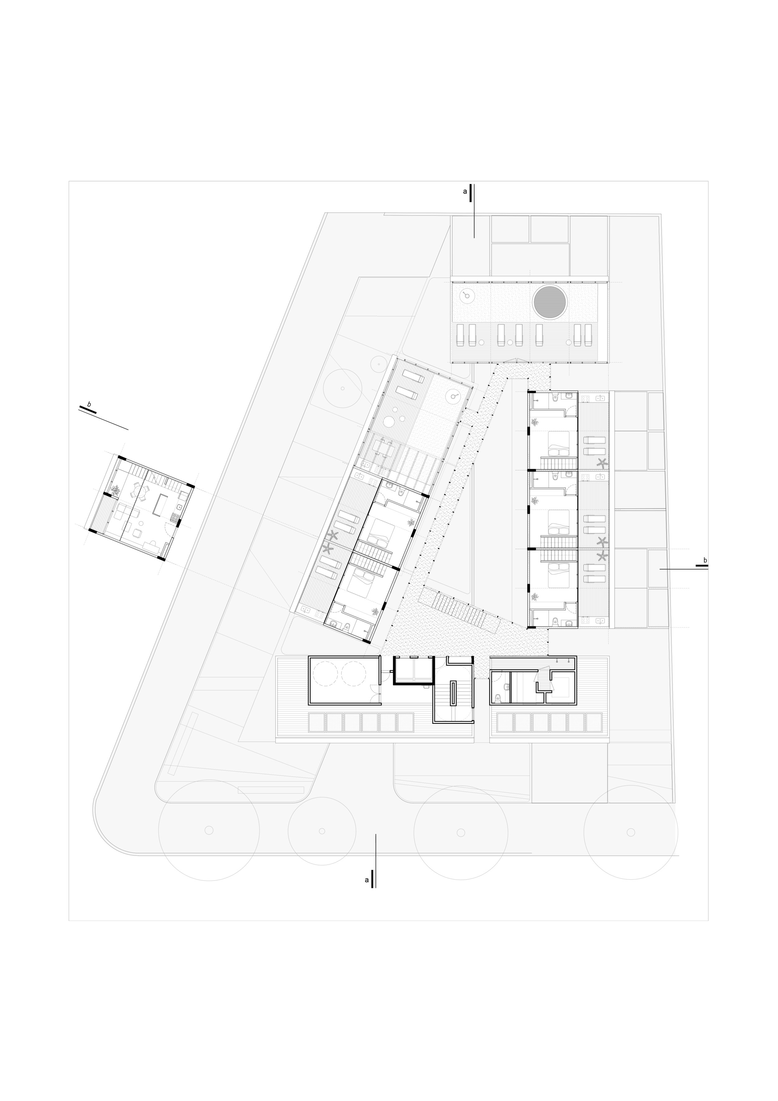
Edifício Água Verde

Localização: Curitiba, PR

Área: 7.500m²

Ano do projeto: 2019

Situação: Concurso Público Nacional - Estudo

Fotos: SEM FOTOS

Coautores: Bruno Gondo, Marcos Bresser, Thiago Maurélio

Colaboradores: Luísa Garbarino  e Vitor Martins